1. Accueil
  2. Achat
  3. Achat Appartement
  4. Achat Appartement CAPBRETON (40130)

Appartement T2 à vendre 2 pièces - 45,54 m2 CAPBRETON - 40

Ref : 62435

299 700 €

  • Honoraires charge vendeur
Appartement T2 à vendre - 2 pièces - 45,54 m2 - Capbreton - 40 - AQUITAINE
Appartement T2 à vendre - 2 pièces - 45,54 m2 - Capbreton - 40 - AQUITAINE
Envoyer un message
Message
Envoyer ce bien à un ami

Description

Découvrez votre nouveau havre de paix au cœur de Capbreton

Situé en plein centre-ville, ce projet immobilier d'exception propose seulement 12 appartements élégants, du 2 au 4 pièces une opportunité rare alliant confort, intimité et emplacement privilégié.

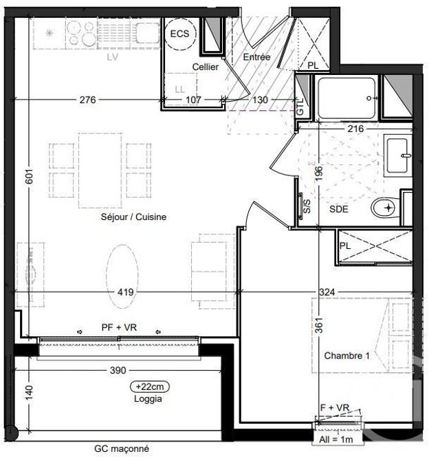
Ce charmant T2 offre une belle pièce de vie de 25 m² avec cuisine ouverte, prolongée par une loggia de 5 m² exposée SUD. L'espace nuit se compose d'une chambre spacieuse, d'une salle d'eau moderne avec WC
Deux places de parking, dont une en sous-sol complètent ce bien.

Livraison prévue au 1er trimestre 2027.

Vous êtes primo-accédant ? Bénéficiez du Prêt à Taux Zéro (PTZ) pour faciliter l'achat de votre résidence principale.

Localisation

Laissez-nous vos coordonnées pour obtenir la localisation

Envoyer

Afficher sur la carte :

Demander la localisation

Vue globale

  • Surface totale : 51,0 m2
  • Surface habitable : 45,5 m2
  • Type d'appartement : T2
  • Étage : 1er
  • Nombre de pièces : 2
    • Entrée (2,3 m2)
    • Séjour Cuisine (24,9 m2)
    • Chambre (11,5 m2)
    • Salle d'eau (5,3 m2)
    • Cellier (1,5 m2)
  • Année construction : 2027

Équipements

Général

  • Balcon

À savoir

Pour consulter les barèmes d'honoraires de l'agence, cliquez ici

Les informations sur les risques auxquels ce bien est exposé sont disponibles sur le site Géorisques :

Copropriété

  • Nombre de Lots : 39
  • Charges courantes par an : 1,0 €
  • Pas de procédure en cours

Les performances énergétiques

Non soumis au DPE

Ce bien est proposé par l'agence CENTURY 21 Berritzea

CENTURY 21 Berritzea

CENTURY 21 Berritzea

2 avenue du Maréchal Leclerc

40130 CAPBRETON

05 58 72 07 82
qualitelis Votre agence est notée
Achat Vente
9,4/10
Location Gestion
9,4/10

Nos offres

Notre agence immobilière à Capbreton vous propose :

Calculer vos mensualités
de remboursement

Montant du prêt :
Durée du crédit
Taux d'intérêt (hors assurances)

vos mensualités

- € par mois

(Dont -€ d’assurances)

Crédit immobilier simulation
et premiers calculs

vous êtes acquéreur et vendeur,

Vous êtes acquéreur et vendeur, nos agents immobiliers peuvent vous accompagner dans vos projets

Contacter l'agence

Envoyer à un ami

Envoyer

Créer votre alerte

Rappel de vos critères de recherche :

Erreur dans les critères envoyés

Limite d'alertes atteinte

Cette alerte existe déjà

Cette alerte est déjà enregistrée pour cette adresse email. Vous continuerez à recevoir les biens correspondant à vos critères.

Une erreur est survenue

Merci de réessayer ultérieurement.

Votre alerte a été créée

Vous recevrez les biens correspondant à vos critères.

logo vente privées

48h

d’avance sur
le marché

Prenez un temps d’avance sur le marché en profitant gratuitement des Ventes Privées CENTURY 21

Si ce n’est pas déjà fait, créez votre compte client pour recevoir en avant-première des biens exclusifs, réservés à nos clients pendant les 48 premières heures suivant leur commercialisation.

Nos agences proposent régulièrement des biens comme celui que vous cherchez

Ne ratez pas une opportunité, on vous alerte en priorité !

Êtes-vous actuellement propriétaire de votre bien ?
Créer une alerte
Je souhaite être alerté
Voir les biens correspondants

Envoyer un message :

Envoyer